Belle Haven Classic
Lots of defined living spaces let you truly enjoy time together at home
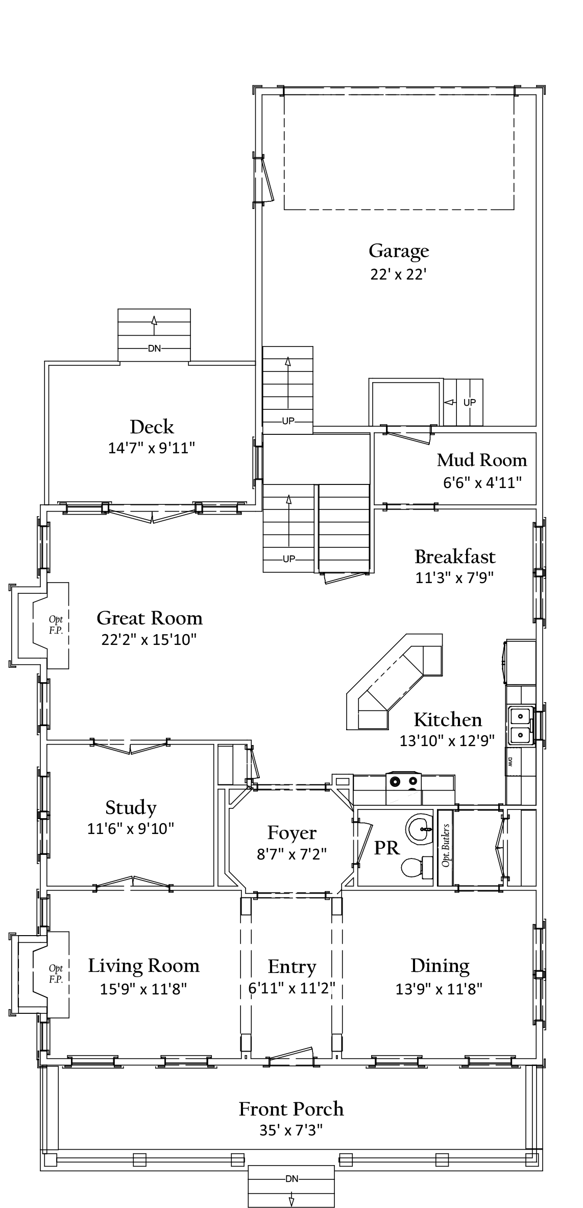
There’s no shortage of separate living spaces in the Belle Haven Classic, making it perfect for multiple work-from-home spaces or just having lots of room to entertain and spread out. The home features a traditional center hall entrance flanked by a Living Room, Dining Room and private Study/Home Office. Additional living space is at the rear of the house with a separate Great Room that opens onto an Optional Deck or Screened Porch, as well as a Breakfast Room and open Kitchen that features an oversized island. A spacious attached two-car Garage at the rear of the home connects to a convenient Mudroom off the kitchen. An optional Bonus Room with a separate Storage Room can be included above the Garage for expanded living space. An oversized second-floor Owner’s Suite extends the full length of the home and offers private access to an optional expansive Front Porch and large Walk-in Closet plus oversized Bath with soaking tub and separate shower. Three additional Bedrooms add even more space for family, guests, and work & hobby space, completing this truly impressive home.
- Lots of Separate First Floor Living Space
- Large Living Room plus Separate Great Room that Opens onto Optional Deck
- Spacious Open Kitchen with Breakfast Area
- Oversized Owner’s Suite, plus Three Additional Bedrooms
- Convenient Upstairs Laundry Room
- Large Private Study
- Separate Butler’s Pantry, Offering Ample Storage
- Mudroom and Drop Zone adjacent to Kitchen
- Bonus Room and extra Storage Room (optional)
- Immense Second-Level Front Porch (optional) Opens to Owner’s Suite



















