Galveston Legacy
Sanctuary space for you, and some for your guests
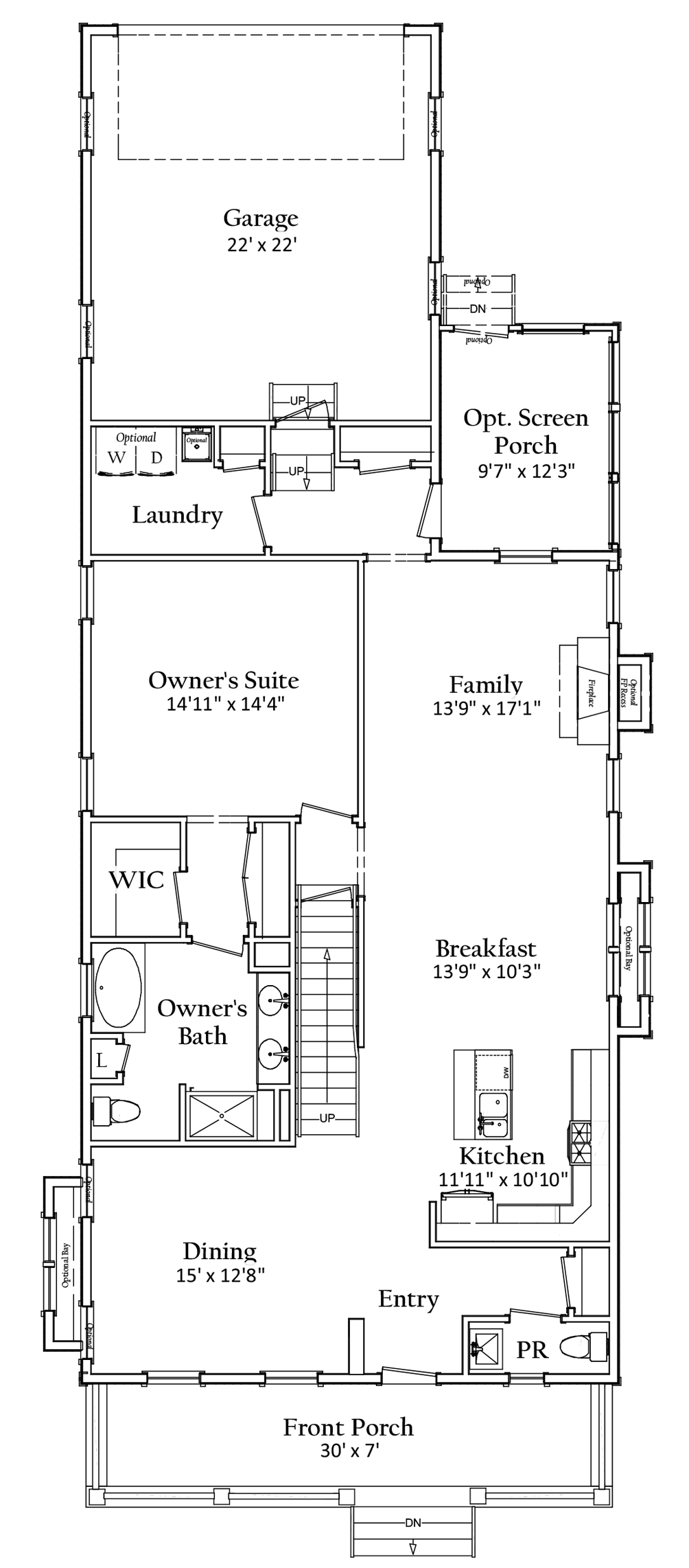
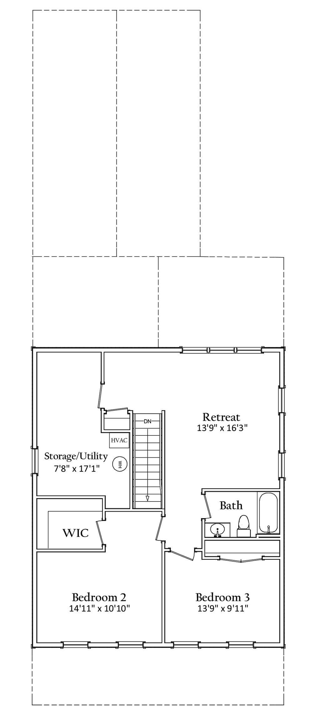
The Galveston Legacy offers a first-floor Owner’s Suite that’s private and tucked away, giving you both a connection to the rest of the living space, and a place to retreat from it. The rest of the first floor features open, airy rooms, with a large Family Room and centerpiece fireplace connected to a big Breakfast Room and open Kitchen, with a separate Dining Room. The Mudroom entry has a Laundry Room adjacent, and an optional Screened Porch off the Family Room. Upstairs, two more Bedrooms and a Retreat Space offer a separate private haven for other family members or overnight guests, or just extra hobby and relaxation space for you. The home also features lots of closet space and a large Storage Room upstairs, great for whether you’re downsizing or just stocking up on supplies.
- Private First-Floor Owner’s Suite with Two Closets
- Large Breakfast Room
- Separate Dining Room
- Open Great Room with Optional Screened Porch
- Mudroom with Adjacent Laundry Room
- Full-Width Front Porch
- Second-Floor Retreat Space/Media Room
- 2 Second-Floor Bedrooms
- Oversized Second-Floor Storage Room
- Lots of Closet Space



















