Sawgrass Classic
A is for ‘ahhhhhhh…’
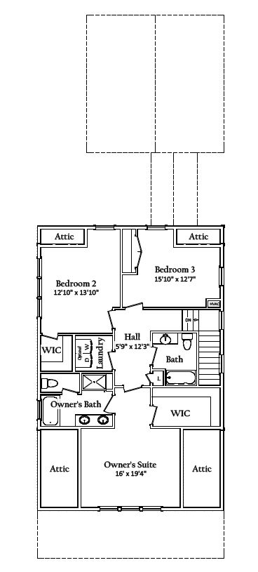
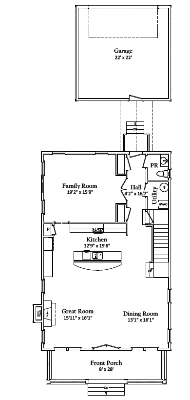
Its distinctive A-frame shape makes it one of the easiest homes to spot in our design collection. But it’s the interior that makes people really fall for the Sawgrass, a classic Malibu beach house style that’s at once elegant and comfortably casual. The wide open living space at the front of the home immediately sets a relaxing and inviting tone, especially the gorgeous, airy Kitchen that’s the centerpiece of the space. A second Living Room at the back of the house is spacious but tucked away and can easily double as a private Home Office or Retreat Space. Upstairs features an oversized Owner’s Suite with a substantial Owner’s Bath and roomy Walk-In Closet. A large Laundry Room is conveniently adjacent, and the second floor also features two more Bedrooms and a second full Bathroom.
- Spacious, Open Floor Plan
- Gorgeous Centerpiece Kitchen, Great for Entertaining
- Second Living Room or Private Study
- Oversized Owner’s Suite with Enormous Walk-In Closet
- Powder Room and Storage Closet adjacent to Rear Entry
- Second-Floor Laundry Room

















