Sawgrass Legacy
Eastern Shore style at its easiest
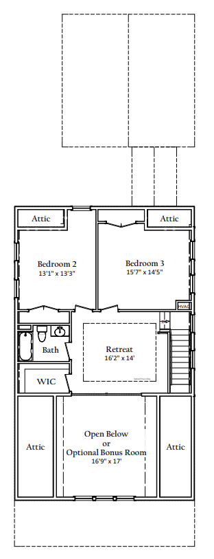
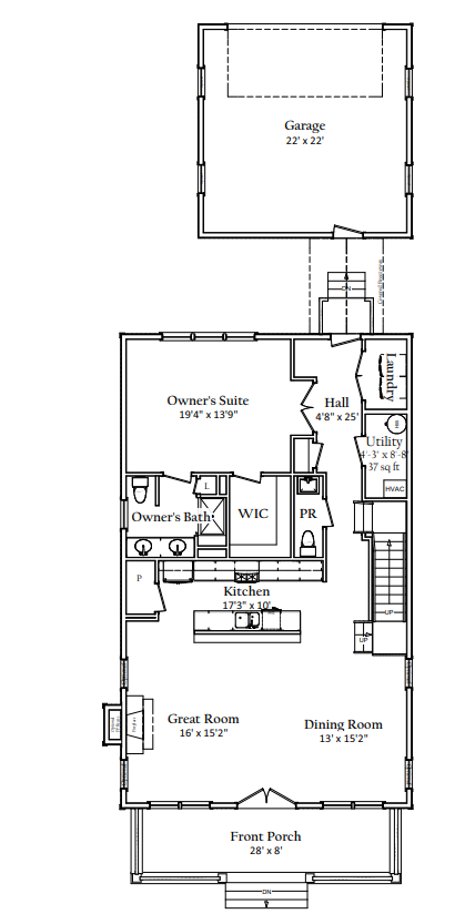
With its optional vaulted ceiling, the Sawgrass Legacy is a showstopper. Immediately upon entering you’re greeted with a wide open living area that’s both truly impressive, and relaxing and welcoming. Without its optional vaulted ceiling, you still have an open and welcoming living space with a gorgeous centerpiece Kitchen, as well as a spacious Bonus Room above, for additional living space or family and guest quarters. Either way, it’s one of our most distinctive designs, with its Malibu A-frame style, and it’s quintessentially Eastern Shore, designed for comfort and practicality and especially relaxation. From the large, full-width Front Porch to the open living area, with Kitchen, Great Room, and Dining Room all easily accessible, to the spacious Owner’s Suite in back, single-level living is all easily within reach. Two more Bedrooms upstairs and a Retreat Space/Media Room offer a private sanctuary for guests or other household members, or additional relaxation space.
- Large First-Floor Owner’s Suite with Spacious Walk-In Closet
- Optional Vaulted Ceiling
- Spacious, Open Floor Plan
- Gorgeous Centerpiece Kitchen, Great for Entertaining
- Convenient Mudroom Area with adjacent Laundry Room and Storage Room
- Two Bedrooms on Second Floor
- Large Retreat Space/Media Room
- Spacious Optional Bonus Room
- Large Storage Closet

















